VENDITA INDIPENDENTI - SALVIANO LIVORNO

                                                 
Salviano
codice riferimento: Rif.4448

  Condividi   Condividi

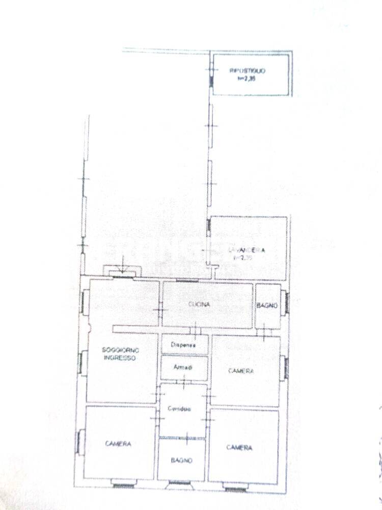
Rif. 4448 SALVIANO In zona tranquilla e ben servita, proponiamo TERRATETTO libero su quattro lati in perfette condizioni dotato di pannelli fotovoltaici, con ampi spazi sia interni che esterni e dotazioni moderne. Caratteristiche principali: Spazio esterno privato di circa 100 mq, ideale per momenti di relax all’aperto, con tre posti auto e colonnina di ricarica per veicoli elettrici già installata. GARAGE doppio, ripostiglio e cantina. Possibilità di sfruttare il sottotetto come ulteriore spazio abitativo. Internamente è così composta: Ingresso su sala da pranzo, con cucina adiacente e ampia dispensa, salone doppio suddiviso in zona divani e zona pranzo, due camere matrimoniali, di cui una con bagno privato, secondo bagno finestrato e cabina armadi. Reale possibilità di ricavare una terza camera.Soluzione ideale per chi cerca indipendenza, comfort moderni e spazi generosi, a pochi minuti dai principali servizi e vie di comunicazione. Perfette condizioni, molto luminosa. (Classe E) La richiesta è di euro 395.000 Trattabili




2 bagni, 2 camere, Cantina, Cucina, Garage e posto auto, Giardino, Salone doppio, Termoautonomo.
 
 
Piano: TERRA
Superficie: 130 mq
Classe: G
Prezzo: € 395.000,00


Torna alla ricerca Richiedi informazioni